00%
Téléchargement ...

Conservatoire de Lyon – Rénovation du SSI dans ERP locaux à sommeil

Mise en conformité réglementaire du système de désenfumage de la résidence étudiants, située aux niveaux R+2 et R+3 du bâtiment ancien du CNSMDL.

Infos

Surface
50 chambres sur 2 niveaux

Coût travaux
400 k€HT

Année
Conception en 2024/2025
Chantier en cours depuis juillet 2025

Mission ARO
Architecte : Conception, Autorisations administratives et dossier ERP, Suivi de chantier DET architectural

Mission CIMES
Economiste TCE, Conception Electricité CFO Cfa SSI, maîtrise d’œuvre d’Exécution : DET TCE et OPC

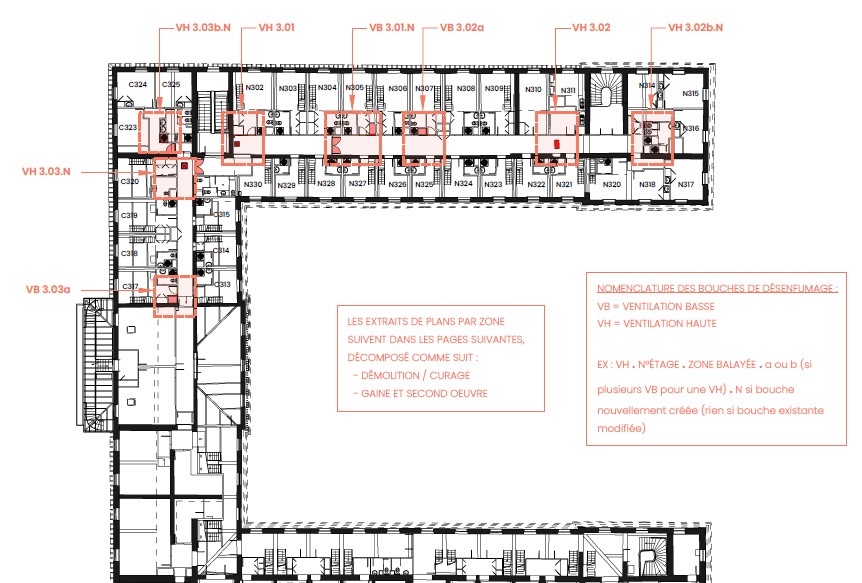
Plan d'implantation des VB et VH - 3e étage
Plan d'implantation des VB et VH - 2e étage
Exemple de plan de local technique dédié au désenfumage
Exemple de coupe de prise d'air neuf nouvelle

Spécificités du projet :

Le projet consiste en la mise en conformité du système de désenfumage de la résidence étudiants située dans un bâtiment patrimonial du Conservatoire de Lyon CNSMD, classé ERP de 3e catégorie. L'objectif est de garantir la sécurité des occupants en cas d'incendie, tout en respectant les contraintes architecturales et patrimoniales du bâtiment.

Notre rôle est une mission de Maîtrise d’œuvre Complète, de la conception à la réalisation.

Mission réalisée par Blandine RIGAUX :

 

Bureau d’études Economie TCE : Estimation et optimisation des coûts pour l'ensemble des lots.

Bureau d’études technique : Conception et suivi des lots Désenfumage et Electricité SSI (Système de Sécurité Incendie).

Rédaction de la notice de sécurité : Rédaction de la notice de sécurité pour le dossier ERP (Établissement Recevant du Public) 3e catégorie types R, S, L.

Points techniques :

01
Création de nouvelles zones de désenfumage : Mise en place de nouvelles portes coupe-feu DAS entre les zones pour assurer une séparation efficace.
02
Ventilation Basse et Haute : Création de nouvelles ventilations basses (VB) et hautes (VH) pour assurer un balayage dans toutes les zones de la résidence.
03
Remplacement des conduits de désenfumage : Remplacement à neuf des conduits existants pour garantir une bonne étanchéité à l'air et le degré coupe-feu des conduits.
04
Locaux techniques dédiés : Création de locaux techniques spécifiques pour le désenfumage, traités coupe-feu 1H.
05
Émergences en toiture : Création d'émergences en toiture pour les VB et VH, en collaboration avec les services Patrimoine de l'UDAP (Unité Départementale de l'Architecture et du Patrimoine).
06
Travaux SSI : Réalisation des travaux liés à la mise en conformité du Système de Sécurité Incendie. Collaboration étroite avec les services du SDMIS (Service Départemental Métropolitain d'Incendie et de Secours).
07
Chantier en site occupé à l'échelle du bâtiment et du site du Conservatoire, et au calendrier contraint pendant la fermeture de la résidences étudiants.
01  /  Dépose/Repose des gaines verticales de désenfumage
02  /  Entrée d'air existante
03  /  Schéma technique des nouveaux lanterneaux
keyboard_arrow_left
keyboard_arrow_right

Collaboration
ARO + CIMES :

La collaboration avec ARO Architecture a été essentielle pour la réussite de ce projet. Notre expertise en conception architecturale a permis de respecter les contraintes patrimoniales du bâtiment, tandis que notre équipe a assuré la maîtrise d'œuvre et la coordination des travaux pour tenir les engagements calendaires du Conservatoire.